Материал изготовления и конструктивные особенности
Топка имеет двойной корпус.
К внешнему, выполненному из котловой стали, приварены п-образные профили (рёбра жёсткости), таким способом, что, в металле, во время разогрева, не возникает деформации (предварительно напряжённая конструкция). Это обеспечивает неизменность формы, эффективность теплопередачи и долговечность.
Футеровка формирует структуру, несущую на себе всю термическую нагрузку.
Бесколосниковая (подовая) конструкция способствует эффективному сгоранию.
Шамот, керамические вставки – стенки разогревается продолжительно, температура развивается более, чем с металлическим содержимым. Превосходно для любителей долго пожечь.
Панели 3Д – сбалансированный вариант, тепло распределяется равномерно, а внушительная масса поддерживает высокотемпературное горение.
Широкие стальные пластины для стиля хай-тек.
Вид на огонь
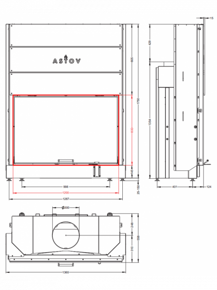
Дверка представительных размеров, с прямым стеклом, соотношения 4/3. Наиболее востребованная модель, как для классического, так и для каминов других направлений. Увеличенный обзор, благодаря специальной рамке.
Шелкография завершает обрамление очага, гармонируя с внутренним убранством топочной части.
Усиленный воздушный поток на дожиг, предохраняет стеклокерамику от нагара. Застеклённая поверхность остаётся неизменно чистой, пока вы протапливаете.
Плотное прижимание дверцы, в нижней точке закрывания, и качественные регуляторы, позволяют без напряжения управлять огненным процессом, от практически невидимого, до бушующего.
Ручка для открывания, бархатная на ощупь, не обжигает руки.
Дверь поднимается легко и бесшумно, благодаря особенным, долговечным приспособлениям.
Регулируемые ножки, задают исключительно чёткую установку агрегата, что очень существенно для устойчивого, мягкого движения подъёмного механизма.
Мощность топки и необходимые габариты подходящего помещения.
Номинальная теплопроизводительность устройства 12 кВт. Оптимальный объём зала 300 м3. Вы будете чувствовать себя комфортно, даже если очаг горит круглосуточно.
Тип подсоединения к дымоходу и условия для формирования хорошей тяги
Выходной патрубок сделан для подключения трубы «по конденсату».
Влага будет испарятся, не оказывая разрушающего воздействия на стыковочные узлы.
Для уменьшения сопротивления в дымовом канале и улучшения работы топливника, обязательно применяйте розжиг сверху, когда растапливаете холодный камин.
Как избежать проблем с дымом, при обустройстве газохода, подробно описано в руководстве.
Гарантии производителя
Гарантийный срок, для подачи рекламации – 5 лет.
АСТОВ гарантирует исправную службу изделия, на протяжении всего периода использования, если 80% времени, будет поддерживаться умеренный (средний) режим сгорания, с соблюдением всех правил монтажа и эксплуатации, изложенных в инструкции.




























