Описание
Отзывы
Особенности:
- модельный ряд из трех котлов мощностью 16, 21 и 31 кВт;
- рабочее давление теплоносителя до 3 бар;
- КПД до 76%.
Преимущества:
- многоходовой теплообменник для максимального съема тепла уходящих дымовых газов;
- система подачи вторичного воздуха рассчитанная под большую топку, повышает эффективность котла;
- увеличенная топка длинной до 64 см для использования крупногабаритного топлива;
- корпус котла под декоративной обшивкой изолирован базальтовым картоном, что снижает теплопотери водяной рубашки;
- две большие двери для удобной загрузки и обслуживания котла;
- установлен термометр.
Топливо:
- уголь бурый;
- уголь длиннопламенный;
- дрова 510-640 мм;
- пеллеты (опционально).
Характеристики
Количество контуров
1
Страна производитель
Россия
Производитель
Zota
Мощность, кВт
21
Масса котла, кг
127
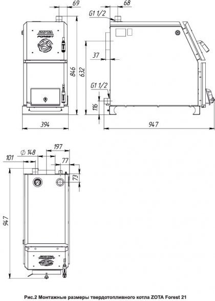
Высота, мм
846
Ширина, мм
400
Глубина, мм
946
Тип топлива
Дрова/уголь/Электричество
Площадь помещения (до), кв.м
210
Объем топки, л
57
Длина дров, мм
636
Варочная панель
нет
Диаметр дымохода, мм
150
Коэффициент полезного действия, %
76
Рекомендуемое рабочее давление воды в котле, МПа (кг/см2)
0,3
Присоединительная резьба штуцеров для подвода и отвода воды
G 1 1/2''
Рабочий объем воды в аппарате, л
48
Отзывов ещё нет — ваш может стать первым.
Все отзывы 0
