Современная, стильная и мощная печь-камин Дунай-Аква оснащена водяным теплообменником. Разработана как основной или вспомогательный отопительный прибор для современного дома площадью до 150 м2. Печь-камин Дунай оснащена всеми современными характеристиками: система воздушной очистки стекла, система вторичного дожига газов, система подачи воздуха из «вне», возможность подключения дымохода сверху либо сзади.
Максимальная длина дров 380 мм.
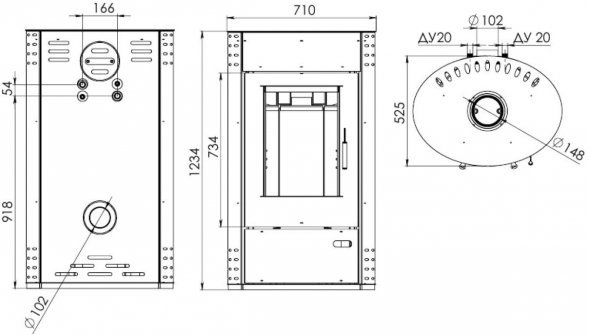
Оригинальная конструкция теплообменника обеспечивает быстрый и эффективный нагрев теплоносителя. Теплообменник выполнен из высококачественной стали толщиной 5 мм, что обеспечивает высокую надежность и длительный срок эксплуатации. Объем теплоносителя в системе отопления существенно зависит от того как и по какой схеме построена система отопления и складывается из объема радиаторов, труб, ресивера (или расширительного бака) и водяного контура печи-камина. Ориентировочно объем теплоносителя, при котором система отопления будет функционировать нормально, составляет 50 – 90 л.
Печи-камины Аква возможно топить неподключенными к системе отопления, при этом теплообменник из строя не выйдет. Однако это ускоряет его износ. Если Аква подключена к системе отопления, но не заполнена водой топить ее нельзя, т.к. это приведет к повреждению элементов системы отопления. Аква не может быть подключена к открытой системе без циркуляционного насоса. Монтаж такой системы обязательно должен производится квалифицированным специалистом.
В печах АКВА возможно применение антифриза, на работу теплообменника это не влияет, но надо удостовериться, что остальные элементы отопительной системы также допускают его использование.
Необходимая производительность насоса для стандартной (50-90 л.) отопительной системы составляет 0,4 м3/ч.
Объем расширительного бака зависит от объема отопительной системы, вида теплоносителя, максимального рабочего давления в системе, статического давления системы и подбирается в каждом случае индивидуально.
Как правило, объем расширительного бака закрытого типа составляет 7 - 10% от общего объема отопительной системы, объем открытого расширительного бака - не менее 10%.
















