6465000638000RUB
Описание
Отзывы
Южная - банная печь с уникальным узлом дожига дымовых газов , который обеспечивает более полное сгорание дров и и, как следствие, снижение расхода дров до 30%. Печь оснащена съемной закрытой каменкой, топка печи футерована шамотными плитами. В стандартную комплектацию печи входит индивидуально разработанный кожух из натурального камня толщиной 40 мм с регулируемой конвекцией.
Характеристики
Марка стали
AISI 430
Варианты кожуха
Талькохлорит
Производитель
ИзиСтим
Страна производитель
Россия
Вес
188
Максимальны объем парильни, м3
35
Топится
Из парильного помещения
Диаметр дымохода, мм
150
Материал печи
Нержавеющая сталь
Тип дверцы:
Со стеклом
Наличие встроенного теплообменника
Нет
Тип каменки
Закрытая
Рекомендуемый режим бани
Русская баня
Максимальная длина полена
500
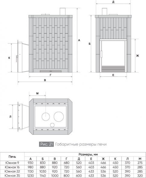
Высота, мм
1230
Ширина, мм
600
Глубина, мм
1000
Вес камней, кг
35
Наличие встроенного бака для нагрева воды
Нет
Толщина, мм
3 мм.
Размер стекла:
400 х 420 мм.
Вес камней в закрытой каменке:
110
Топливо
дрова/ древесные брикеты
Мощность печи (кВт)
45
Толщина закрытой каменки, мм:
4 мм.
Масса кожуха
320
Отзывов ещё нет — ваш может стать первым.
Все отзывы 0





