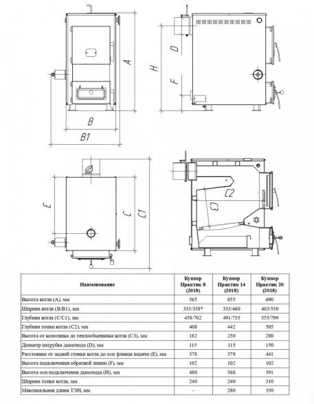
Описание
Отзывы
Экономия бюджета
«Куппер ПРАКТИК» - экономичная линейка надежных твердотопливных отопительных котлов для отопления жилых домов и других помещений площадью до 200 м².
Универсальность
Котел универсален и может работать как в закрытых, так и в открытых системах отопления с принудительной циркуляцией теплоносителя. Кроме того, котлы могут использоваться как самостоятельный источник тепловой энергии в качестве дополнения к существующим системам отопления с газовыми, жидкотопливными или электрическими котлами.
Все необходимое в комплекте
В базовую комплектацию котла Куппер Практик входит: кочерга, шуровка, термометр, поворотный шибер.
Небольшие габариты
Котел занимает совсем немного места и может быть установлен непосредственно в жилом помещении.
Особенности
- Глубокая наклонная топка для использования длинных дров и равномерного распределения угля по всей глубине топки при засыпке.
- Защитный кожух-конвектор с конвекционными отверстиями для дополнительного обогрева помещения, в котором установлен котел.
- Возможность установки автоматического регулятора тяги для управления интенсивностью горения.
- Чугунный колосник (в котлах Куппер Практик В - водонаполненный).
- Вместительный ящик зольника.
- Термометр для контроля температуры теплоносителя.
Отличия обновленного Куппер Практик 1.1 от Куппер Практик (2018):
- Обновленный дизайн
- Подача вторичного воздуха
- Увеличенное рабочее давление с 2 до 3 атм
- Термометр на фронтальной части котла
- Блок ТЭН для поддержания температуры теплоносителя, приобретается отдельно
Отзывов ещё нет — ваш может стать первым.
Все отзывы 0
